133 Goodson Loop
Charming single level custom built brick home with expansive views of the golf course in Litchfield Country Club
Nestled in one of the most private settings in the neighborhood, located on a picturesque corner lot along the fairways of Litchfield Country Club, this classic 3-bedroom, 2.5-bath one level home offers timeless character and Lowcountry charm in the heart of Pawleys Island.
Tucked away on a small circle off another quiet loop, this location is truly special — no through traffic, no busy streets, and virtually no cars passing by. It’s the perfect spot for peaceful morning walks, bike rides, or strolling with your dog. This rare sense of privacy and tranquility sets it apart from most homes in Litchfield Country Club.
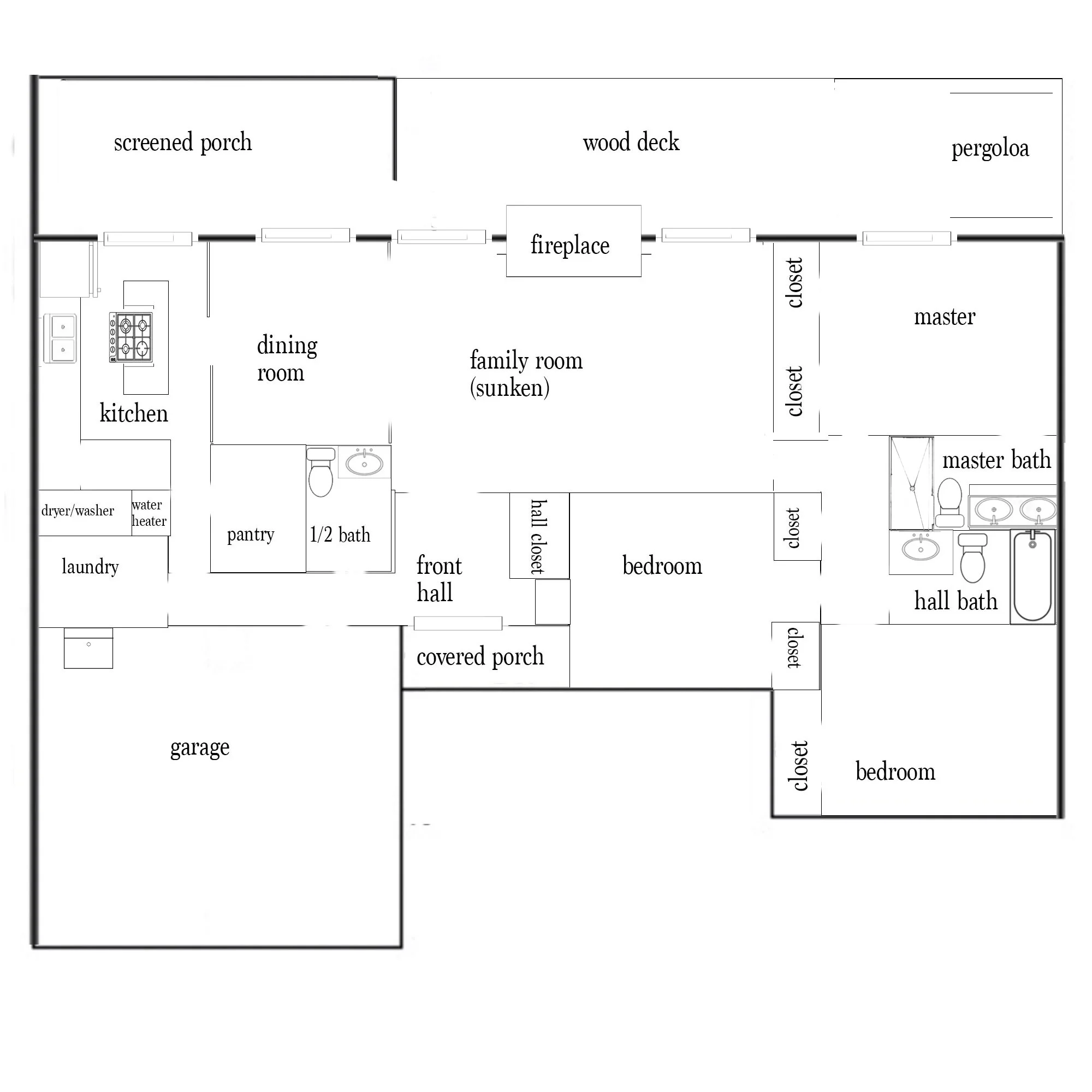
A graceful brick walkway leads to the welcoming front porch, framed by mature landscaping and stately trees that create a peaceful, private setting. Inside, you’ll find spacious living areas filled with natural light and warm architectural details. The living room features vaulted ceilings and a cozy brick fireplace, perfect for gatherings or quiet evenings at home. The kitchen offers plenty of workspace and storage, with a functional layout that opens easily to the adjoining dining area and family room which also enjoy tranquil golf course views. The primary suite provides a quiet retreat and opens up onto the deck and pergola overlooking golf course views, while two additional bedrooms and a full bathroom offer flexibility for guests, a home office, or hobbies.
Step outside to enjoy the golf course views from the extended deck or oversized screened porch — an ideal spot for morning coffee or evening gatherings. With its convenient single-level floor plan, classic design, and unbeatable location just minutes from the beach, shopping, and dining, this home offers the perfect opportunity to enjoy Pawleys Island living at your own pace.
*professional photography coming soon
133 Goodson Loop
offered at $535,000
NO HOA
Flooring or appliance credit available with acceptable offer.
about the home
Built in 1981
one story
All brick home
3 bedroom
2.5 bath
1810 heated square feet
2540 total square feet
large deck
newly rebuilt large screen porch
New drainage field for septic tank 2024
Almost half an acre on very private corner lot on the golf course
Fully fenced in back yard
Ample driveway space for cars, boats, utility trailers or other recreation vehicles.
Huge pantry
appreciate the privacy and charm with a chance to personalize
Thoughtfully maintained over the years by only two owners since 1981, this home offers wonderful bones and timeless appeal — with the opportunity to update finishes or reimagine spaces to suit your personal style. Whether you prefer to move right in or gradually make it your own, this property provides an inviting canvas in one of Pawleys Island’s most desirable neighborhoods.
Floor plan is a visual aid only. All square footage, room sizes and any information deemed important is to be verified by the buyer.
Wall between dining room and kitchen is not load bearing and can easily be opened up if a more open floorpan is desired.
How does it compare?
133 Goodson Loop is currently the lowest priced 3/+ bedroom home in Litchfield Country Club. It is also priced significantly below the average sold price in both the neighborhood and all of Pawleys Island.
about the area
Pawleys Island | Litchfield Country Club
Established among the moss-draped oaks and peaceful fairways of Pawleys Island, Litchfield Country Club is one of the area’s most beloved and established communities. Centered around one of the Grand Strand’s original golf courses, the neighborhood is known for its tree-lined streets, mature landscaping, and timeless Southern charm.Homes in Litchfield Country Club vary in style and size — from traditional brick residences to updated Lowcountry designs — each set on spacious lots that reflect the community’s relaxed, uncrowded feel. While membership at the club is optional, residents enjoy easy access to the semi-private golf course, tennis and pickle ball courts, and a welcoming clubhouse with dining and social events throughout the year all without the member fees.
LCC residents are just minutes from Pawleys Island’s pristine beaches, boutique shops, and local restaurants, Waccamaw schools and hospitals. With convenient access to both historic Georgetown, Charleston and even Myrtle Beach, Litchfield Country Club offers the best of coastal living — a peaceful beach town setting with a friendly small town feel and all the amenities of the South Carolina coast right at your doorstep.
CONTACT
Seller is a licensed real estate broker in South Carolina, North Carolina, and Virginia. This home is currently being sold off market, for sale by owner.
133 Goodson Loop Pawleys Island, SC 29585 is currently an off-market opportunity and not currently listed on CCMLS or other online real estate websites. Professional photography and MLS listing coming next week.
All qualified buyers can submit an offer with or without a buyers broker agency. All Fair Housing and Equal Opportunity guidelines apply.
Up to 3% Buyer Broker compensation available with acceptable offer.

